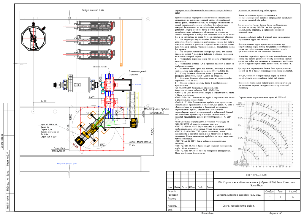
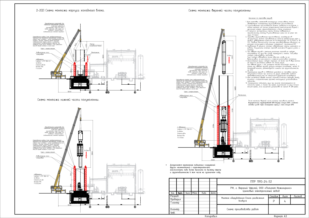
Что такое ППР на бетонные работы
ППР (проект производства работ) на бетонные работы — это ключевой технический документ, регламентирующий организацию, технологию и порядок выполнения работ по возведению монолитных конструкций. Данный проект описывает полный цикл всех работ с бетоном и обеспечивает оптимальное распределение ресурсов на стройплощадке.
Для кого подходит услуга
Услуга «разработка ППР на бетонные работы» подходит для подрядчиков, застройщиков и компаний, осуществляющих строительные работы с применением бетона и железобетона. Наши инженеры разработают проект индивидуально для вашего объекта, учитывая все требования заказчика и стандарты отрасли.
Какие проблемы решает ППР на бетонные работы
- Оптимизирует рабочий процесс: четкое планирование последовательности монтажа опалубки, армирования и бетонирования позволяет ускорить темпы строительства и исключить неоправданные простои.
- Повышает качество продукции: детальная инструкция по каждому этапу снижает количество брака и повышает надежность возводимых конструкций.
- Экономит финансовые средства: точный расчет количества необходимых материалов и оборудования предотвращает перерасход бюджета.
- Соблюдение норм безопасности: предусмотрены все правила техники безопасности и санитарии на каждом этапе строительства.
Что входит в ППР на бетонные работы
Наш проект включает:
- Календарный график производства работ.
- Технологическая карта которая определяет методы доставки и укладки бетона.
- Перечень применяемой техники и инвентаря для арматурных и опалубочных работ.
- Описание мероприятий по подготовке рабочей поверхности и контролю качества готовой продукции.
- Специальные инструкции по уходу за свежезалитым бетоном.
- Детализированный расчет необходимого количества материалов и работников.
Заказать разработку ППР на монолитные работы
Закажите разработку ППР на монолитные (бетонные) работы по низкой стоимости, с оплатой по факту и сопровождением до полного согласования!












